Product Description

FABLAX PVT.LTD., is a manufacture of M-sand plant. Different equipments involved in our plant includes feeder, VSI, jaw crusher, sand making machine, vibrating screen,sand belt conveyor & other parts involved in production line.

  • Trained & professional technical team
  • Reliable production & processing equipments
  • Efficient service team
  • High quality & reasonable price
  • Continues improvement & innovation to meet customer demand
  • Understanding customer need & customizing machine according to their need so that they get integrated, cost effective system to work.

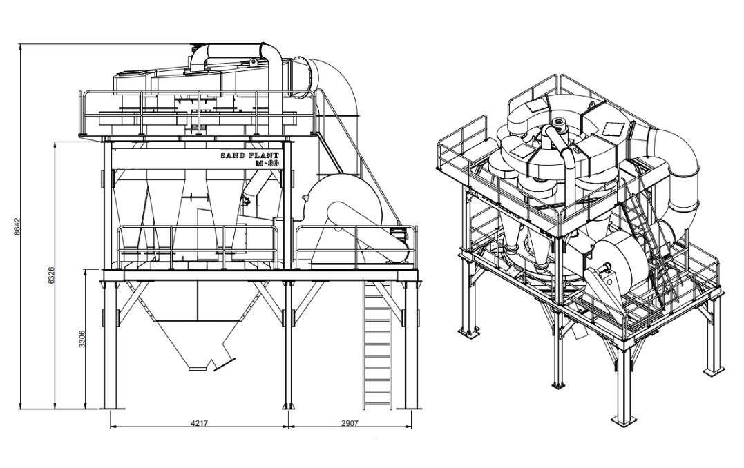
FABLAX air classifier (o fdifferent capacities like FAC-10, FAC-20, FAC-40, FAC-80 & FAC-120) is a machinery that separates dust efficiently from crushed sand to get clear & zone classified M-sand. This is a highly efficient powder separating machine that includes vibrating rotary disc which rotates along the main shaft. This results in strong centrifugal action leading to the separation of coarse particles from fineparticles. The dispersed fine sand will be collected into the peripheral cyclones while the main qualified & coarse material will be thrown to the inner wall of the main centre silo and gets collected at the bottom which can be remover further through the outlet & sent to conveyor belt for its final collection

SALIENT FEATURES:

Our machine offers full flexibility of selecting required gradation sieve to achieve desired product with fully automated controls

It is highly environmental friendly as it saves 95% water wastage as well as a low noise design

It offers low operating cost

Moisture content can be easily controlled by adding water adding mixer to give

controlled moisture content.

Stand-alone modular units to integrate with existing plant

The equipment sand exposed parts are covered with wear lines.

It gives ideal size & shape to the M-sand that performs better than natural sand

Plant Specification Model
Technical Paramemters
Model FABLAX-120
Throughput(t/h) 80-100
Fine powder(t/h) Raw material 16-22
M Sand M-Sand 78-84
Exhauster Motor Speed Speed(R/min)(VFD) 145-1400
Power(HP) 100
Rotor Shaft Speed Speed(R/min) (VFD) 50-380
Power(HP) 20
Air Blower Airvolume(m3/h) 67645
Air pressure(Pa) 2470
Power(HP) 160
Applications of FABLAX Air classifier

The air-classification mainly consists of air currents with centrifugal force that can separate powder particles into different fractions according to their sizes and densities. It is used in different industries like:


  • Cement industries
  • Air pollution control unit
  • Food processing industries
  • Pigments industries
  • Pharmaceutical industries
  • Cosmetics or chemical industries
×

Get In Touch

Contact Info

Phone number

(456) 789 10 12

(456) 789 10 15

Email address

demo@gmail.com

indusinfo@gmail.com

Address info

1363-1385 Sunset Blvd Los Angeles